Трехкомнатная квартира 75,27 м2 по ул. Тормозное шоссе 2 за 6347000 руб.

Трехкомнатная квартира по ул. Тормозное шоссе, 2 в Ярославле
Цена 6 347 000 р. (84 323 р./м2)
Подать заявку на ипотеку
Район Фрунзенский
Адрес Тормозное шоссе, 2
Этаж 8/9
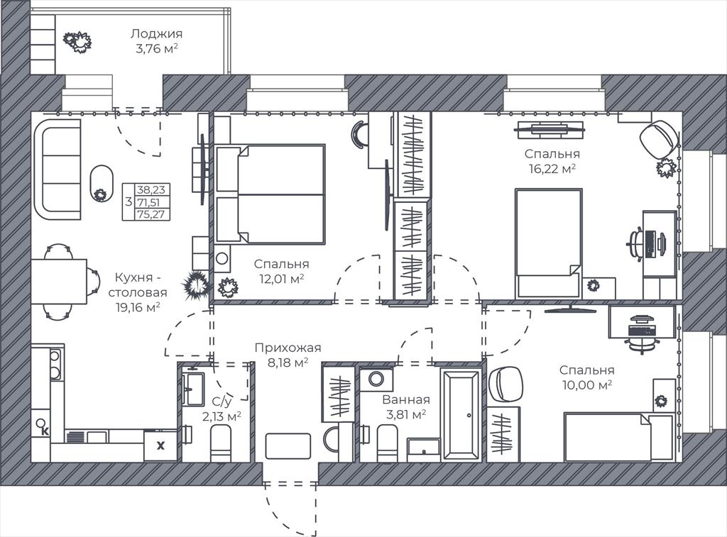
Площадь общая 75,27 м2, жилая 38,23 м2, кухни 19,16 м2
Кол-во комнат Трехкомнатная
Продается 3-комн. квартира, площадью 75.27 м2, район города - Фрунзенский. Возможен вариант покупки с использованием ипотечных средств, есть рассрочка. Жилая площадь 38.23 м2, кухня 19.16 м2. Площадь комнат: 12.01/10/16.22 м2, предчистовая отделка, комнаты изолированные. Квартира располагается на 8 этаже 9-этажного дома в ЖК Домашний. Застройщик - ООО СЗ ФОКУС ГРУПП. Парковка автомобилей - наземная. Инфраструктура: детские площадки, спортивные площадки, места для отдыха, супермаркет. ЖК Домашний строится во Фрунзенском районе, здесь множество возможностей для активного отдыха и поддержания физической формы. Облагороженная территория с полностью развитой инфраструктурой. В шаговой доступности находится детский сад и школа. В непосредственной близости находятся сетевые супермаркеты и локальные магазины, аптеки, клиники, почта, библиотека, салоны красоты, спортивные и творческие секции, развивающие детские центры. Продуманный архитектурный проект -Высотность комплекса 9 этажей; -ЖК из керамического кирпича; -Высота потолков 2,7м; - Индивидуальное газовое отопление; - Просторные кухни от 20 кв.м. ; - Отделка white box (предчистовая отделка) выполняется во всех квартирах. Отличная транспортная доступность - 19 мин. На авто до центра города; -5 мин. Пешком до школы и детского сада; -5 мин. На авто до поликлиники; - В шаговой доступности магазины и аптеки. Позвоните и узнайте условия покупки прямо сейчас!
Описание дома
Этажность дома 9
Объявление № 23439333
Дата подачи:
20 октября 2025 г. 1:10
Дата обновления:
22 октября 2025 г. 2:05
Просмотров 12 Хотите продать быстрее?

Продавец
Алина
Показать номер телефона
Пожаловаться
Комментарии:
Добавить